Общая площадь:
180.2 м2
Жилая площадь:
72.31 м2
Секция
6
Этаж:
23
S6 – 4 – 22 – 204 квартира

№ 204

1.  Коридор: 15.74 м2
2.  Гостиная: 17.02 м2
3.  Спальня: 18.18 м2
4.  Кухня: 20.32 м2
5.  Санузел: 2.72 м2
6.  Лоджия: 2.32 м2
7.  Коридор - 2: 12.19 м2
8.  Спальня - 2: 15.27 м2
9.  Спальня - 3: 17.64 м2
10.  Спальня - 4: 21.22 м2
11.  Санузел - 2: 6.20 м2
12.  Лоджия - 2: 2.31 м2
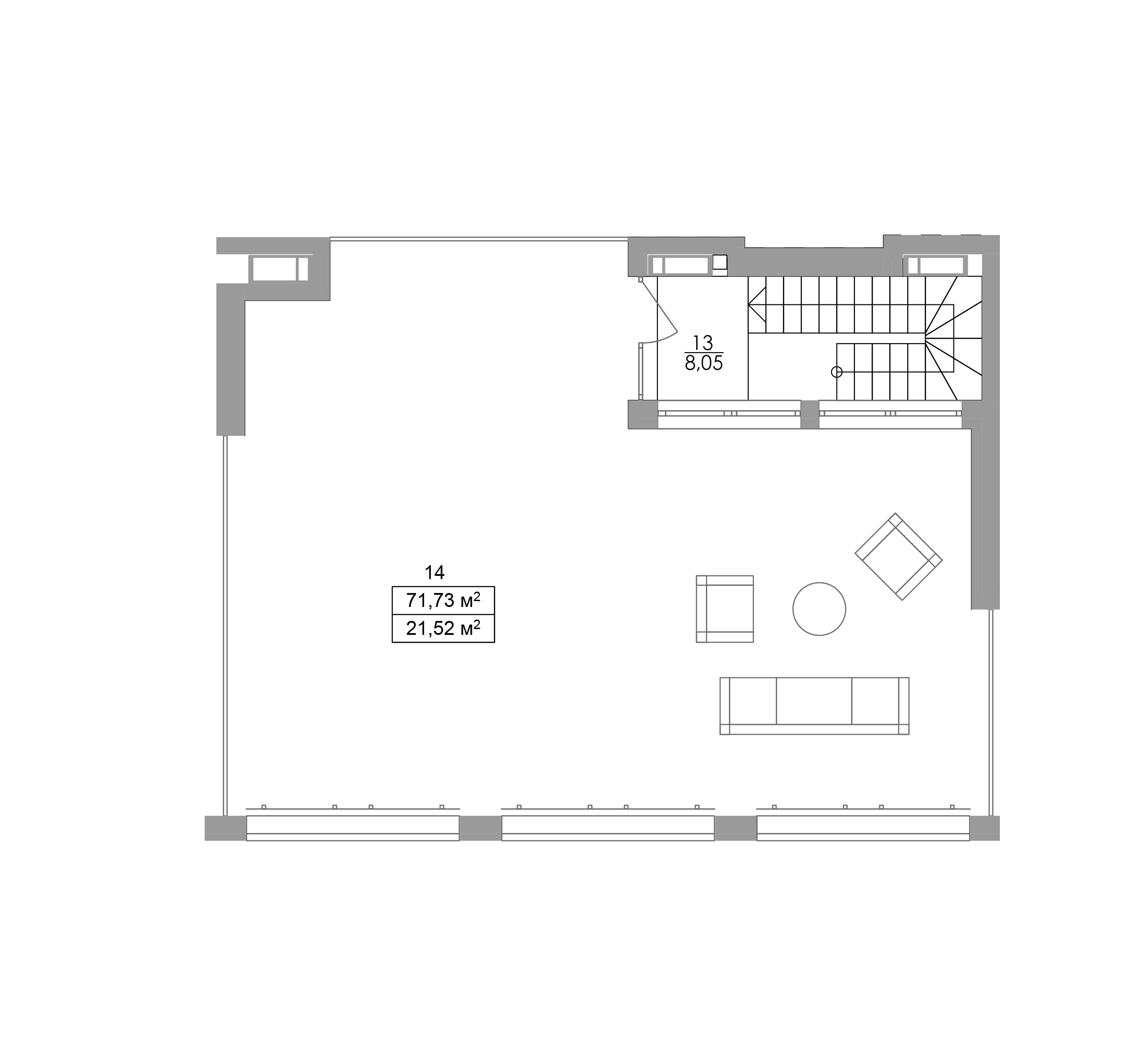
13.  Выход на терассу: 8.05 м2
14.  Терасса: 21.52 м2
Загрузить PDF- файл