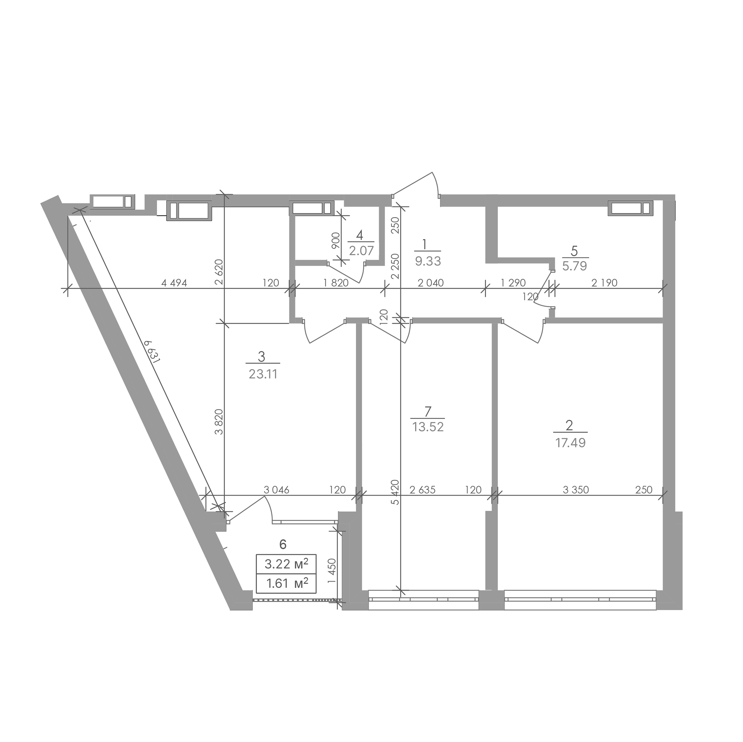
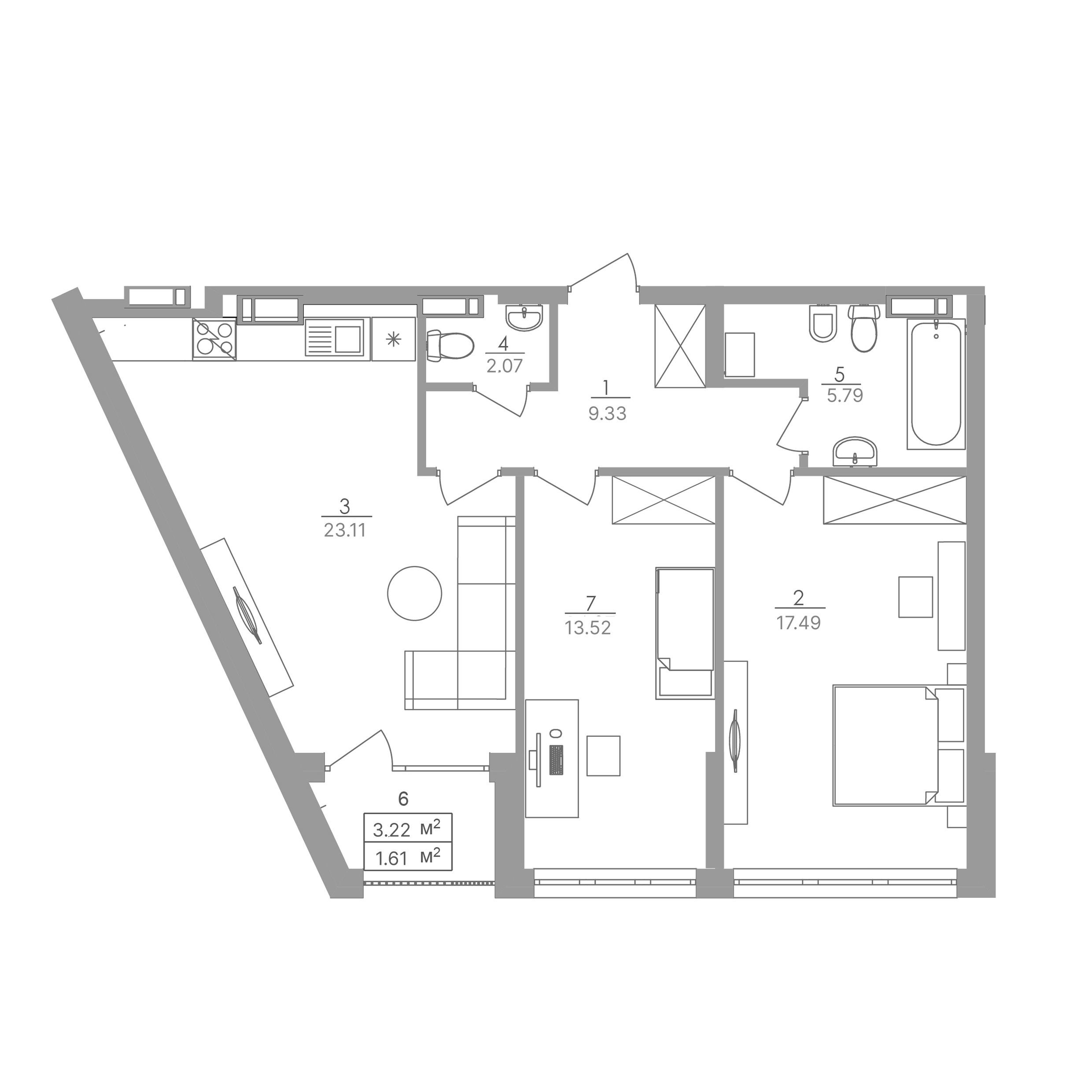
Total area:
72.9 м2
Living area:
31.0 м2
Section
6
Floor:
14
S6 – 2 – 14 – 127 flat

№ 127

1.  Corridor: 9.33 м2
2.  Bedroom: 13.52 м2
3.  Bedroom - 2: 17.49 м2
4.  Kitchen: 23.11 м2
5.  Bathroom: 2.07 м2
6.  Bathroom - 2: 5.79 м2
7.  Loggia: 1.61 м2
Download PDF- file