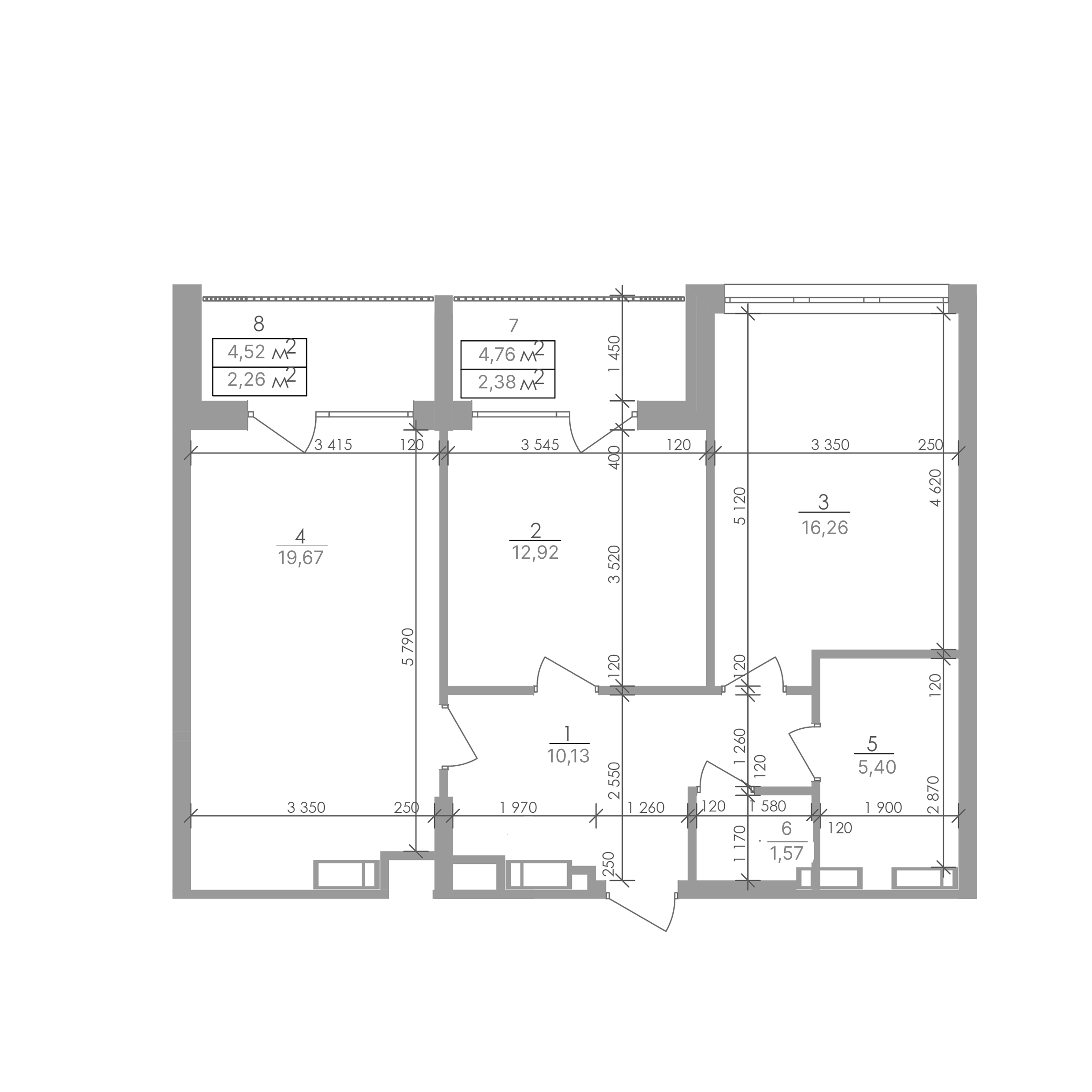
Total area:
70.6 м2
Living area:
29.2 м2
Section
6
Floor:
22
S6 – 4 – 22 – 208 flat

№ 209

1.  Corridor: 10.13 м2
2.  Bedroom: 12.92 м2
3.  Bedroom - 2: 16.26 м2
4.  Kitchen: 19.67 м2
5.  Bathroom: 5.40 м2
6.  Bathroom - 2: -1.43 м2
7.  Loggia: 2.38 м2
8.  Loggia - 2: 2.26 м2
Download PDF- file